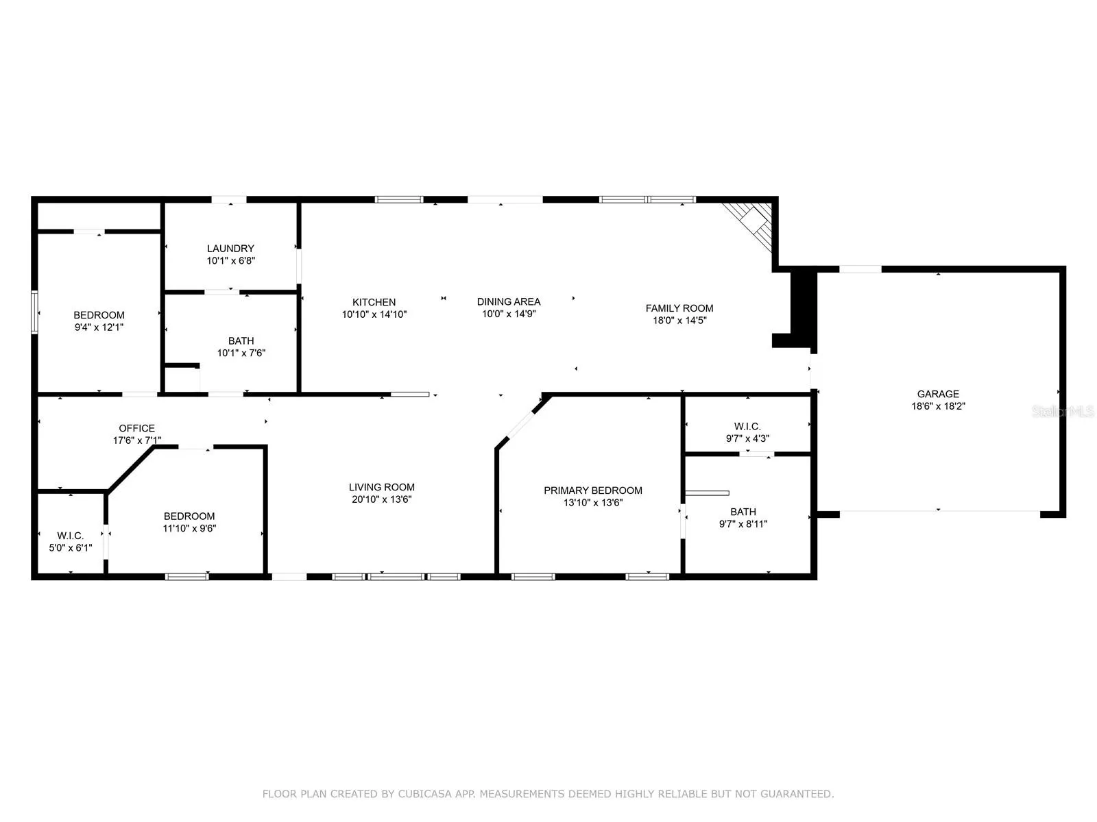
Under contract-accepting backup offers. ROOM TO SPRAWL! Situated on almost 1/2 acre lot with back yard totally fenced. 3 Bedroom 2 Bath split plan including a separate Office/Craft/Media area. Open floor plan with huge great room, fireplace, eat in kitchen and Living room. Laundry room has access out to huge backyard with shade trees. Attached 2 car garage. Access to space under house for maintenance. New Roof September 2024, HVAC replaced in February 2021, newer privacy PVC fence.
We use cookies to improve your experience on our site. By using our site, you consent to cookies.
Websites store cookies to enhance functionality and personalise your experience. You can manage your preferences, but blocking some cookies may impact site performance and services.
Essential cookies enable basic functions and are necessary for the proper function of the website.
Google reCAPTCHA helps protect websites from spam and abuse by verifying user interactions through challenges.
These cookies are used for managing login functionality on this website.
Statistics cookies collect information anonymously. This information helps us understand how visitors use our website.
Google Analytics is a powerful tool that tracks and analyzes website traffic for informed marketing decisions.
Service URL: policies.google.com
